The Place For Over 10.000 Popular Download, Design, Music, Anime, Wallpaper, Logo, Image and more.
24+ Denah Rumah Minimalis 2 Lantai 9X10 Pictures
20/10/2015 00:00
24+ Denah Rumah Minimalis 2 Lantai 9X10 Pictures. Model desain rumah kost minimalis 2 lantai mewah nyaman via kreasirumah.net. Support channel kami dengan cara like, share, and subscribe dan dapatkan info design menarik dari kami silahkan share channel ini agar bermanfaat bagi yang.
7 Gambar Desain Dan Denah Rumah Klasik Minimalis Yg Ideal ... from arsitekindonesia.id
Desain rumah 2 lantai tidak perlu mewah dan mahal, sesuaikan desain yang anda pilih dengan kemampuan financial dan kemampuan energi anda. Denah pondasi rumah ukuran 6x12, denah rumah 3 kamar ukuran 6x12, rumah minimalis 2 lantai ukuran 6x9, desain rumah minimalis 2 lantai 6x12, bentuk rumah sederhana. 15 denah rumah minimalis 2 kamar tidur 3d 2017 terbaru dekor rumah via dekorrumah.net.
Desain denah rumah ala amerika minimalis.
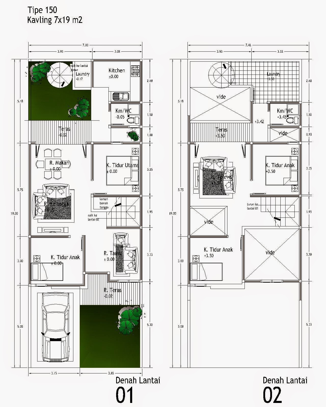
Denah adalah rancangan atau gambaran dari ukuran serta bentuk rumah minimalis anda. Desain rumah minimalis 2 lantai ukuran 8 x 10 terpopuler youtube via youtube.com. Kamu memiliki anggota keluarga yang cukup besar? Denah kita yang ke empat memiliki tipologi sama dengan denah denah kita sebelumnya.